CLD Marine Cabinet Air Conditioner
Application:
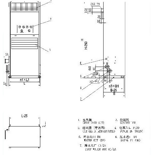
CLD type marine cabinet Air conditioner is a direct evaporation type water-cooled Air Conditioner,The Air Conditioner consist of cooling compressor,Condenser,Drier-filter,Air cooler,Fan,Air filter,auto-control elements,Electric elements and electric duct nearer,etc.
All componets of this unit are already assembled by the manufacturer,Also pressure test,Vacuum test for cooling system are already done,Sufficient amont of R404A gas is filled in.
Features:
Pay attention not to damage any component of the tube system and the unit during the lifting,The air conditoner body is made of thin steel plates,hangers shall be used for lifting,Wooden plate shall be used as protection pad for wall face in order to protect the body from damage.
The thread holes in base frame of unit shall be made on site so that they match those holes in the base of veseal.
A hard wooden plate of 25mm in thickness shall be used as lining between base frame and base.
Inlet/Outlet water pipe and drainpipe of A/C shall be installed by shipyard.
Connect power source and cables into power switch box.
Main technical parameters:
|
型号Type |
CL(D)-4A |
CL(D)-5A |
CL(D)-6A |
CL(D)-7A |
CL(D)-8A |
CL(D)-9A |
CL(D)-10A |
CL(D)-12A |
CL(D)-15A |
CL(D)-20A |
CL(D)-25A |
|
制冷量 |
4000 |
5000 |
6000 |
7000 |
8000 |
9000 |
10000 |
12000 |
15000 |
20000 |
25000 |
|
压缩机电机功率 |
|
|
|
|
|
|
|
|
|
|
|
|
电制热量 |
|
|
|
|
|
|
|
|
|
|
|
|
制冷剂 |
|
||||||||||
|
风量 |
800 |
1000 |
1200 |
1400 |
1600 |
1800 |
2000 |
2400 |
3000 |
4000 |
5000 |
|
风机电机功率 |
0.09 |
0.09 |
0.09 |
0.18 |
0.18 |
0.25 |
0.25 |
0.25 |
0.55 |
0.8 |
1.8 |
|
冷却水量 |
1.5 |
2.0 |
2.2 |
2.6 |
3.0 |
3.6 |
3.6 |
4.0 |
5.5 |
7.0 |
10.0 |
|
冷却水阻 |
≤30 |
≤30 |
≤30 |
≤30 |
≤30 |
≤30 |
≤30 |
≤30 |
≤30 |
≤50 |
≤50 |
|
冷却水介质 |
|
||||||||||
|
保护类别 |
高压、低压、油压、水压、防冻、冷媒水流量、过载、安全阀、电源 |
||||||||||
|
电源 |
AC380V 3Ph 50Hz/AC440V 3Ph 60Hz |
||||||||||
|
重量Kg Weight |
175 |
185 |
195 |
205 |
215 |
250 |
260 |
300 |
320 |
360 |
400 |
Dimensions:
|
Type |
L |
B |
H |
n1XL1 |
n2-φ1 |
n3XB1 |
DN |
|
CL(D)-4A |
599 |
500 |
1750 |
1X569 |
4-φ13 |
1X415 |
DN20 |
|
CL(D)-5A |
599 |
500 |
1750 |
1X569 |
4-φ13 |
1X415 |
DN20 |
|
CL(D)-6A |
599 |
500 |
1750 |
1X569 |
4-φ13 |
1X415 |
DN20 |
|
CL(D)-7A |
599 |
500 |
1750 |
1X569 |
4-φ13 |
1X415 |
DN20 |
|
CL(D)-8A |
599 |
500 |
1750 |
1X569 |
4-φ13 |
1X415 |
DN20 |
|
CL(D)-9A |
718 |
500 |
1750 |
1X688 |
4-φ13 |
1X415 |
DN25 |
|
CL(D)-10A |
718 |
500 |
1750 |
1X688 |
4-φ13 |
1X415 |
DN25 |
|
CL(D)-12A |
810 |
575 |
1800 |
1X780 |
4-φ13 |
1X490 |
DN25 |
|
CL(D)-15A |
1040 |
600 |
1900 |
1X1010 |
4-φ18 |
1X515 |
DN32 |
|
CL(D)-20A |
1200 |
750 |
1900 |
2X580 |
6-φ18 |
1X665 |
DN32 |
|
CL(D)-25A |
1200 |
750 |
1900 |
2X580 |
6-φ18 |
1X665 |
DN32 |
Drawing:
Society certificates










CONTACT WITH US NOW