YTLS Marine Water Chiller
Application:
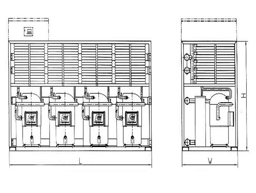
YTLS Navy water chiller module design make the installation convinient and flexible,developing the max efficiency,improving the reliability and accessible for maintanence,Single water chiller module may be combined together to provide a large system,which is easy to modify the type of for special service,Refrigenerant circuit of single water chiller module is totally enclosed and filled with R22 at factory and need no charge on site.Chilled or heated water piping and cooling sea water piping can be collected individually,improving the connection speed and is convinient for customer installation.
Each water chiller module includes hermetic scroll compressor,4-way reserve valve,double way expansion valve,High efficient coaxial condenser,stainless steel plate type heater exchanger,high&low pressure switch,water flow controller and water pan etc,Each assembly is assembled together compactly and make volume small.
Features:
Compact module design makes arrangement convinient.
AL alloy frame make weight light.
High efficient stainless steel plate type heater exchanger ensure the unit performance and reduce the volume.
All kinds of protection device make unit run safety.
Digital display controller is simple and convinients.
Electric box may be remote mounted,Its control and maintanence is more convinient.
One outdoor unit may incoorperate with multiple indoor units,which make installation more convinient and flexible.
Main technical parameters:
|
Type |
YTLS- |
YTLS- |
YTLS- |
YTLS- |
YTLS- |
YTLS- |
||
|
制冷量 |
KW |
7 |
10.5 |
14 |
17.5 |
21.1 |
26.3 |
|
|
Btu/hr |
24000 |
36000 |
48000 |
60000 |
72000 |
90000 |
||
|
制热量 |
KW |
7.72 |
11.55 |
15.4 |
19.3 |
23.2 |
28.9 |
|
|
Btu/hr |
26000 |
40000 |
52000 |
66000 |
79000 |
98000 |
||
|
制冷剂 Refrigerant |
R22(R134a,R404A,R407C) |
|||||||
|
电制 Power Supply |
AC380V 3Φ 50Hz/ AC440V 3Φ 60Hz |
|||||||
|
总功率KW Total Power |
1.5/2.2 |
2.2/3.2 |
3.0/4.2 |
3.7/5.4 |
5.0/7.0 |
5.6/7.9 |
||
|
电流A Current |
3.5/5.0 |
5.0/7.0 |
6.6/8.9 |
7.4/11.2 |
10.5/14.2 |
11.8/16.8 |
||
|
冷热媒水量 |
1.2 |
1.8 |
2.4 |
3.0 |
3.6 |
4.5 |
||
|
冷热媒水进出口温度 |
制冷时(Cooling)12/7℃,制热水(Heating)40/45℃ |
|||||||
|
冷却海水流量 |
1.78 |
2.64 |
3.58 |
4.5 |
5.35 |
6.5 |
||
|
冷却海水进口温度 |
制冷时(Cooling) ≤32℃,制热水(Heating)≥8℃ |
|||||||
|
|
长度L mm |
660 |
660 |
730 |
730 |
800 |
800 |
|
|
长度L1 mm |
610 |
610 |
610 |
610 |
610 |
610 |
||
|
宽度W mm |
305 |
305 |
305 |
305 |
405 |
405 |
||
|
高度H mm |
450 |
520 |
540 |
580 |
640 |
710 |
||
|
重量 Weight KG |
85 |
95 |
100 |
110 |
135 |
165 |
||
|
Type |
YTLS- |
YTLS- |
YTLS- |
YTLS- |
YTLS- |
YTLS- |
||
|
制冷量 |
KW |
35 |
42 |
28 |
35 |
42.2 |
52.6 |
|
|
Btu/hr |
120000 |
140000 |
96000 |
120000 |
144000 |
180000 |
||
|
制热量 |
KW |
38.5 |
46.2 |
30.8 |
38.5 |
46.4 |
57.8 |
|
|
Btu/hr |
130000 |
158000 |
104000 |
130000 |
158000 |
196000 |
||
|
制冷剂 Refrigerant |
R22(R134a,R404A,R407C) |
|||||||
|
电制 Power Supply |
AC380V 3Φ 50Hz/ AC440V 3Φ 60Hz |
|||||||
|
总功率KW Total Power |
7.3/10.3 |
9.5/13.3 |
6.0/8.4 |
7.4/10.8 |
10/14 |
11.2/15.8 |
||
|
电流A Current |
15.1/20.2 |
19.6/27 |
13.2/17.6 |
15.2/21.2 |
21/28.4 |
23.4/32 |
||
|
冷热媒水量 |
6.0 |
7.4 |
4.8 |
6.0 |
7.2 |
9.0 |
||
|
冷热媒水进出口温度 |
制冷时(Cooling)12/7℃,制热水(Heating)40/45℃ |
|||||||
|
冷却海水流量 |
9.0 |
11.0 |
7.16 |
9.0 |
10.7 |
13.0 |
||
|
冷却海水进口温度 |
制冷时(Cooling) ≤32℃,制热水(Heating)≥8℃ |
|||||||
|
|
|
|
|
|
|
|
|
|
|
宽度W mm |
405 |
405 |
700 |
700 |
900 |
900 |
||
|
高度H mm |
840 |
880 |
590 |
630 |
700 |
760 |
||
|
重量 Weight KG |
180 |
220 |
215 |
235 |
290 |
350 |
||
|
Type |
YTLS- |
YTLS- |
YTLS- |
YTLS- |
YTLS- |
YTLS- |
||
|
制冷量 |
KW |
70 |
84 |
42 |
52.5 |
105 |
126 |
|
|
Btu/hr |
240000 |
288000 |
144000 |
180000 |
360000 |
432000 |
||
|
制热量 |
KW |
77.2 |
92.4 |
46.4 |
57.9 |
115.8 |
138.6 |
|
|
Btu/hr |
260000 |
316000 |
156000 |
198000 |
390000 |
474000 |
||
|
制冷剂 Refrigerant |
R22(R134a,R404A,R407C) |
|||||||
|
电制 Power Supply |
AC380V 3Φ 50Hz/ AC440V 3Φ 60Hz |
|||||||
|
总功率KW Total Power |
14.6/20.6 |
19/26.6 |
9.0/12.6 |
11.1/16.2 |
21.9/30.9 |
28.5/39.9 |
||
|
电流A Current |
28.9/41 |
39.2/54 |
19/26 |
23.2/32.8 |
43.8/59 |
43.8/59 |
||
|
冷热媒水量 |
12 |
14.8 |
7.2 |
9.0 |
18 |
22 |
||
|
冷热媒水进出口温度 |
制冷时(Cooling)12/7℃,制热水(Heating)40/45℃ |
|||||||
|
冷却海水流量 |
18.0 |
22.0 |
10.75 |
13.5 |
27 |
33 |
||
|
冷却海水进口温度 |
制冷时(Cooling) ≤32℃,制热水(Heating)≥8℃ |
|||||||
|
|
|
|
|
|
|
|
|
|
|
宽度W mm |
900 |
900 |
1020 |
1020 |
1400 |
1400 |
||
|
高度H mm |
900 |
940 |
600 |
640 |
900 |
940 |
||
|
重量 Weight KG |
385 |
470 |
320 |
340 |
585 |
710 |
||
|
Type |
YTLS- |
YTLS- |
YTLS- |
YTLS- |
YTLS- |
YTLS- |
||
|
制冷量 |
KW |
56 |
70 |
84 |
105.2 |
140 |
168 |
|
|
Btu/hr |
192000 |
240000 |
288000 |
360000 |
480000 |
576000 |
||
|
制热量 |
KW |
61.9 |
77.2 |
92.5 |
115.6 |
154.4 |
184.8 |
|
|
Btu/hr |
208000 |
260000 |
316000 |
392000 |
520000 |
632000 |
||
|
制冷剂 Refrigerant |
R22(R134a,R404A,R407C) |
|||||||
|
电制 Power Supply |
AC380V 3Φ 50Hz/ AC440V 3Φ 60Hz |
|||||||
|
总功率KW Total Power |
12/16.8 |
14.8/21.6 |
20/28 |
22.4/31.6 |
29.2/41.2 |
38/53.2 |
||
|
电流A Current |
24.8/33 |
29/43 |
40.4/55 |
44.9/60.5 |
57.8/80.6 |
78.4/108 |
||
|
冷热媒水量 |
9.6 |
12 |
14.4 |
18 |
24 |
29.5 |
||
|
冷热媒水进出口温度 |
制冷时(Cooling)12/7℃,制热水(Heating)40/45℃ |
|||||||
|
冷却海水流量 |
14.4 |
18.0 |
21.4 |
26 |
36 |
44 |
||
|
冷却海水进口温度 |
制冷时(Cooling) ≤32℃,制热水(Heating)≥8℃ |
|||||||
|
|
|
|
|
|
|
|
|
|
|
宽度W mm |
730 |
730 |
850 |
850 |
850 |
850 |
||
|
高度H mm |
820 |
820 |
880 |
880 |
980 |
1020 |
||
|
重量 Weight KG |
450 |
470 |
560 |
710 |
780 |
940 |
||
|
Type |
YTLS- |
YTLS- |
YTLS- |
YTLS- |
YTLS- |
YTLS- |
||
|
制冷量 |
KW |
87.5 |
105 |
175 |
210 |
210 |
252 |
|
|
Btu/hr |
300000 |
360000 |
600000 |
720000 |
720000 |
864000 |
||
|
制热量 |
KW |
96.5 |
115.7 |
192.5 |
231 |
231 |
277.2 |
|
|
Btu/hr |
330000 |
395000 |
650000 |
790000 |
790000 |
948000 |
||
|
制冷剂 Refrigerant |
R22(R134a,R404A,R407C) |
|||||||
|
电制 Power Supply |
AC380V 3Φ 50Hz/ AC440V 3Φ 60Hz |
|||||||
|
总功率KW Total Power |
18.5/27 |
25/35 |
36.5/51.5 |
47.5/66.5 |
43.8/61.8 |
57/79.8 |
||
|
电流A Current |
36.5/53.8 |
49.2/69 |
71.8/99.8 |
93.2/120.2 |
90.6/111.2 |
117.6/142 |
||
|
冷热媒水量 |
15 |
18 |
30 |
36 |
36 |
44.5 |
||
|
冷热媒水进出口温度 |
制冷时(Cooling)12/7℃,制热水(Heating)40/45℃ |
|||||||
|
冷却海水流量 |
22.5 |
26.7 |
45 |
55 |
55 |
66 |
||
|
冷却海水进口温度 |
制冷时(Cooling) ≤32℃,制热水(Heating)≥8℃ |
|||||||
|
|
|
|
|
|
|
|
|
|
|
宽度W mm |
780 |
780 |
880 |
880 |
950 |
950 |
||
|
高度H mm |
820 |
820 |
980 |
1050 |
1050 |
1050 |
||
|
重量 Weight KG |
580 |
750 |
1010 |
1230 |
1450 |
1550 |
||
|
型号Type |
XKH-5-I |
XKH-5-II |
XKH-5-III |
XKH-5-IV |
XKH-5-V |
XKH-5-VI |
|
|
电制 Power Supply |
AC380V 3Φ 50Hz/ AC440V 3Φ 60Hz |
||||||
|
|
长度L mm |
500 |
500 |
640 |
720 |
780 |
840 |
|
宽度W mm |
200 |
200 |
200 |
200 |
200 |
200 |
|
|
高度H mm |
610 |
610 |
610 |
610 |
610 |
610 |
|
|
安装尺寸 |
长度L1 mm |
440 |
440 |
580 |
660 |
720 |
720 |
|
宽度W1 mm |
670 |
670 |
670 |
670 |
670 |
670 |
|
|
高度H1 mm |
730 |
730 |
730 |
730 |
730 |
730 |
|
|
重量 Weight Kg |
25 |
25 |
32 |
38 |
44 |
50 |
|
Drawing:
Society certificates










CONTACT WITH US NOW