Marine Explosion Proof Centrifugal Fan
CBL Series Marine Explosion Proof Centrifugal Fan
CBL series marine explosion proof centrifugal fan are designed and manufactured according to GB11799-89 Marine Explosion Proof Centrifugal Fans, GB3836.1-2000 Electrical Apparatus for Explosive Atmospheres GB3836.2-2000 Electrical Apparatus for Explosive Atmospheres, and Explosion Proof Exectrical ‘d’ , Steel Sea Ship in Class and Building Rules.
1.Features
Explosion proof, safe and reliable in operation, small size, light weight, low noise, anticorrosive, swing resistance, vibration resistance and shock resistance.
2.Structrure
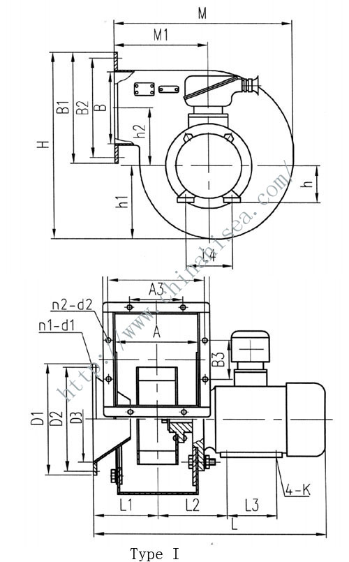
There are two structural type: type I (direct coupling type) and type II (separate cabins type), The construction is non-sparking.
3.Model Explanation (The impeller diameter from 15 to 58. etc)
4.Main Parameters and Outline Dimensions (From CBL-15 to CBL-18 for Reference)
Type of the ventilator |
Flow rate m3/h |
Total pressure Pa |
Static pressure Pa |
Rotational speed r/min |
Motor |
||||
Freq Hz |
Power (kw) |
Model |
|||||||
Type I |
Type II |
Type I |
Type II |
||||||
CBL-15 |
500 800 |
549(60) 539(55) |
490(50) 392(40) |
2920 |
50 |
0.75 |
1.5 |
YB801-2-H |
YB90S-2-H Y90S-2-H |
600 960 |
784(80) 647(66) |
588(60) 470(48) |
3500 |
60 |
|||||
CBL-16
|
800 1200 |
598(61) 588(60) |
490(50) 343(35) |
2920 |
50 |
0.75 |
1.5 |
YB801-2-H |
YB90S-2-H Y90S-2-H |
960 1400 |
862(88) 843(86) |
706(72) 490(50) |
3500 |
60 |
|||||
CBL-17
|
800 1200 |
696(71) 686(70) |
588(60) 441(45) |
2920 |
50 |
0.75 |
1.5 |
YB801-2-H |
YB90S-2-H Y90S-2-H |
960 |
1000(102) 980(100) |
912(93) 774(79) |
3500 |
60 |
|||||
CBL-18 |
1200 1500 |
813(83) 813(83) |
637(65) 539(55) |
2920 |
50 |
1.1 |
1.5 |
YB802-2-H |
YB90S-2-H Y90S-2-H |
1400 1800 |
1166(119) 1166(119) |
912(93) 774(79) |
3500 |
60 |
5.The Type I drawing of the CBL Series Marine Explosion Proof Centrifugal Fan (From CBL-15 to CBL-18 for Reference)

Fan Model |
Motor Model |
A |
A1 |
A2 |
A3 |
B |
B1 |
B2 |
B3 |
D1 |
D2 |
D3 |
axd1 |
axd1 |
H |
h |
h1 |
h2 |
Type I |
||||||||||||||||||
CBL-15 |
YB801-2-H |
105 |
160 |
135 |
60 |
135 |
188 |
165 |
80 |
Ø210 |
Ø185 |
Ø156 |
8-ø10 |
8-ø10 |
314 |
80 |
1245 |
955 |
CBL-16 |
YB801-2-H |
110 |
165 |
140 |
70 |
150 |
203 |
180 |
90 |
Ø224 |
Ø200 |
Ø170 |
8-ø10 |
8-ø10 |
338 |
80 |
1324 |
104 |
CBL-17 |
YB801-2-H |
110 |
165 |
140 |
70 |
150 |
203 |
180 |
90 |
Ø234 |
Ø210 |
Ø180 |
8-ø10 |
8-ø10 |
338 |
80 |
1325 |
101 |
CBL-18 |
YB801-2-H |
125 |
180 |
155 |
80 |
155 |
208 |
185 |
100 |
Ø244 |
Ø220 |
Ø190 |
8-ø10 |
8-ø10 |
358 |
80 |
1425 |
111.5 |
M |
M1 |
L |
L1 |
L2 |
L3 |
L4 |
K |
II1 |
II2 |
II3 |
ø1 |
ø2 |
ø3 |
I 1 |
I 2 |
I 3 |
I 4 |
I 5 |
I 6 |
Weight (Kg) |
270 |
122.5 |
432 |
87 |
105.5 |
100 |
125 |
ø10 |
439.5 |
250 |
90 |
ø12 |
ø140 |
ø165 |
250 |
185.5 |
387 |
542 |
140 |
100 |
33 |
290.5 |
134 |
440.5 |
92 |
108.5 |
100 |
125 |
ø10 |
455.5 |
250 |
90 |
ø12 |
ø140 |
ø165 |
250 |
193.5 |
395 |
550 |
140 |
100 |
35 |
290.5 |
134 |
456 |
92 |
108.5 |
100 |
125 |
ø10 |
455.5 |
250 |
90 |
ø12 |
ø140 |
ø165 |
250 |
193.5 |
395 |
550 |
140 |
100 |
36 |
310 |
143.5 |
492 |
100 |
116 |
100 |
125 |
ø10 |
465.5 |
250 |
90 |
ø12 |
ø140 |
ø165 |
250 |
209 |
410.5 |
565.5 |
140 |
100 |
37 |
More infomations, please feel free to contact us.
Society certificates

CONTACT WITH US NOW