Marine Explosion Proof Centrifuge Fan
Hi-Sea group specialized in manufacturing and provide marine or navy fans.
Marine Explosion Proof Centrifuge Fan
1.Structure
There are two structural type: type I (direct coupling type) and type II (separate cabins type), The construction is non-sparking.
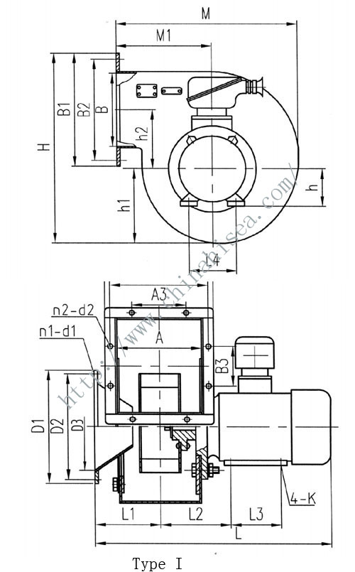
Type I is a motor direct coupling one, the impeller is mounted directly on the motor shaft and the housing is fixed on the flange of the explosion proof motor.
Type II is a separated structure, the fan and the motor are separated, It consists of fan, driving device, flexible couplings and motor. The driving device consists of bearing body, bearing, shaft, brass ring and glands. It can be oiled and measured the temperature. One side is fixed on the fan and the other side will be mounted on the bulkhead.
The fan may be made into a horizontal or vertical, single stage, single suction and airtight structure, it also can be made into vertical type.
2.Model explanation(The impeller diameter from 15 to 58. etc)

3.Parameters and Outline Size(From CBL-50 to CBL-58 for Reference)
| Type of the ventilator | Flow rate | Total pressure Pa | Static pressure Pa | Rotational speed | Motor | ||||
| m3/h | r/min | Freq | Power (kw) | Model | |||||
| Hz | Type I | Type II | Type I | Type II | |||||
| CBL-50 | 12000 | 774(79) | 539(55) | 970 | 50 | 5.5 | 5.5 | YB132M2-6-H | YB132M2-6-H Y132M2-6-H |
| 14000 | 1108(113) | 774(79) | 1160 | 60 | 7.5 | 7.5 | YB160M-6-H | YB160M-6-H | |
| Y160M-6-H | |||||||||
| CBL-50 | 15000 | 1833(187) | 1470(150) | 1460 | 50 | 18.5 | 18.5 | YB180M-4-H | YB180M-4-H |
| 18000 | 1794(181) | 1274(130) | Y180M-4-H | ||||||
| 18000 | 2637(269) | 2118(216) | 1750 | 60 | 22 | 22 | YB180L-4-H | YB180L-4-H Y180L-4-H | |
| 21000 | 2579(263) | 1833(187) | |||||||
| CBL-52 | 12000 | 931(95) | 735(75) | 970 | 50 | 7.5 | 7.5 | YB160M-6-H | YB160M-6-H |
| 15000 | 853(87) | 539(55) | Y160M-6-H | ||||||
| 14000 | 1333(136) | 1059(108) | 1160 | 60 | 11 | 11 | YB160L-6-H | YB160L-6-H | |
| 18000 | 1225(125) | 774(79) | Y160L-6-H | ||||||
| CBL-54 | 15000 | 941(96) | 686(70) | 970 | 50 | 7.5 | 7.5 | YB160M-6-H | YB160M-6-H |
| Y160M-6-H | |||||||||
| 18000 | 1353(138) | 990(101) | 1160 | 60 | 11 | 11 | YB160L-6-H | YB160L-6-H | |
| Y160L-6-H | |||||||||
| CBL-56 | 15000 | 1059(108) | 883(85) | 970 | 50 | 11 | 11 | YB160L-6-H | YB160L-6-H |
| 18000 | 1010(103) | 686(70) | Y160L-6-H | ||||||
| 18000 | 1520(155) | 1196(122) | 1160 | 60 | 15 | 15 | YB180L-6-H | YB180L-6-H | |
| 21000 | 1441(147) | 980(100) | Y180L-6-H | ||||||
| CBL-58 | 18000 | 1157(118) | 882(90) | 970 | 50 | 15 | 15 | YB180L-6-H | YB180L-6-H |
| Y180L-6-H | |||||||||
| 21000 | 1657(169) | 1265(129) | 1160 | 60 | 18.5 | 18.5 | YB200L1-6-H | YB200L1-6-H | |
| Y200L1-6-H | |||||||||
4.The Drawing of Marine Explosion Proof Centrifuge Fan.
Drawing of The Type I of Marine Explosion Proof Centrifuge Fan
Drawing of The Type II of Marine Explosion Proof Centrifuge Fan
The datas of the drawing
|
Fan Model |
Motor Model |
A |
A1 |
A2 |
A3 |
B |
B1 |
B2 |
B3 |
D1 |
D2 |
D3 |
n1-d1 |
n2-d1 |
H |
h |
h1 |
h2 |
|
Type I |
||||||||||||||||||
|
CBL-50 |
YB132M2-6-H |
360 |
448 |
408 |
290 |
470 |
556 |
515 |
390 |
ø606 |
ø570 |
ø520 |
12-ø12 |
12-ø12 |
992 |
132 |
402 |
312 |
|
YB160M-6-H |
160 |
|||||||||||||||||
|
YB160L-4-H |
160 |
|||||||||||||||||
|
|
180 |
|||||||||||||||||
|
CBL-52 |
YB160M-6-H
|
380 |
468 |
428 |
310 |
480 |
566 |
526 |
400 |
ø626 |
ø590 |
ø540 |
12-ø12 |
12-ø12 |
1036 |
160 |
422 |
431 |
|
YB160L-6-H
|
||||||||||||||||||
|
CBL-54 |
YB160M-6-H
|
380 |
468 |
428 |
310 |
530 |
616 |
576 |
450 |
ø646 |
ø610 |
ø560 |
12-ø12 |
12-ø12 |
1078 |
160 |
441 |
329 |
|
YB160L-6-H
|
||||||||||||||||||
|
CBL-56
|
YB160L-6-H
|
400 |
488 |
448 |
330 |
540 |
626 |
586 |
460 |
ø666 |
ø630 |
ø586 |
12-ø12 |
12-ø12 |
1106 |
160 |
453 |
340 |
|
YB180L-6-H
|
180 |
|||||||||||||||||
|
CBL-58 |
YB180L-6-H |
420 |
508 |
468 |
350 |
560 |
646 |
606 |
480 |
ø686 |
ø650 |
ø600 |
12-ø12 |
12-ø12 |
1152 |
180 |
474 |
355 |
|
M |
M1 |
L |
L1 |
L2 |
L3 |
L4 |
K |
H1 |
H2 |
H3 |
ø1 |
ø2 |
ø3 |
I 1 |
I 2 |
I 3 |
I 4 |
I 5 |
I 6 |
Weight (Kg) |
|
|
870
|
|
890 |
235 |
274 |
178 |
216 |
12 |
1020 |
430 |
132 |
ø15 |
ø240 |
ø265 |
400 |
467 |
734 |
952 |
216 |
178 |
190 |
|
|
965 |
293 |
210 |
254 |
15 |
1100 |
510 |
160 |
ø19 |
ø260 |
ø300 |
450 |
467 |
768 |
1052 |
254 |
210 |
230 |
||||
|
1005 |
293 |
254 |
254 |
15 |
510 |
160 |
ø19 |
ø260 |
ø300 |
450 |
467 |
768 |
1052 |
254 |
254 |
255 |
|||||
|
1060 |
306 |
279 |
279 |
15 |
510 |
180 |
ø19 |
ø260 |
ø300 |
450 |
467 |
768 |
1052 |
279 |
279 |
359 |
|||||
|
910
|
412 |
985 |
245 |
303 |
210 |
254 |
15 |
1124 |
510 |
160 |
ø19 |
ø260 |
ø300 |
450 |
467 |
768 |
1052 |
279 |
279 |
241 |
|
|
1025 |
303 |
254 |
254 |
15 |
510 |
ø19 |
ø260 |
ø300 |
450 |
467 |
768 |
1072 |
254 |
254 |
265 |
||||||
|
935
|
416 |
990
|
250 |
303 |
210 |
254 |
15 |
1147 |
510 |
160 |
ø19 |
ø260 |
ø300 |
450 |
492 |
768 |
1072 |
254 |
210 |
252 |
|
|
1030 |
|||||||||||||||||||||
|
303 |
254 |
254 |
15 |
510 |
ø260 |
ø300 |
450 |
492 |
793 |
1077 |
254 |
254 |
276 |
||||||||
|
975
|
442 |
1050 |
260 |
313 |
254 |
254 |
15 |
1163 |
510 |
160 |
ø19 |
ø260 |
ø300 |
450 |
512 |
813 |
1077 |
254 |
254 |
287 |
|
|
1150 |
326 |
279 |
279 |
15 |
510 |
180 |
ø19 |
ø260 |
ø300 |
450 |
512 |
813 |
1097 |
279 |
279 |
382 |
|||||
|
1010
|
454 |
1125 |
270 |
326 |
279 |
279 |
15 |
1188 |
510 |
180 |
ø19 |
ø260 |
ø300 |
450 |
532 |
833 |
1097 |
279 |
279 |
393 |
|
|
1180 |
348 |
318 |
305 |
15 |
1278 |
600 |
200 |
ø19 |
ø310 |
ø300 |
500 |
544 |
863 |
1158 |
318 |
305 |
198 |
More details, please kindly to contact us!
Society certificates











CONTACT WITH US NOW